REQUEST A TOUR If you would like to see this home without being there in person, select the "Virtual Tour" option and your agent will contact you to discuss available opportunities.
In-PersonVirtual Tour

$ 689,900
Est. payment /mo
New
644 Ketter WAY Plympton-wyoming, ON N0N 1T0
3 Beds
3 Baths
UPDATED:
Key Details
Property Type Single Family Home
Sub Type Detached
Listing Status Active
Purchase Type For Sale
Approx. Sqft 1500-2000
Subdivision Plympton Wyoming
MLS Listing ID X12690764
Style 2-Storey
Bedrooms 3
Tax Year 2025
Property Sub-Type Detached
Appx SqFt 1500-2000
Property Description
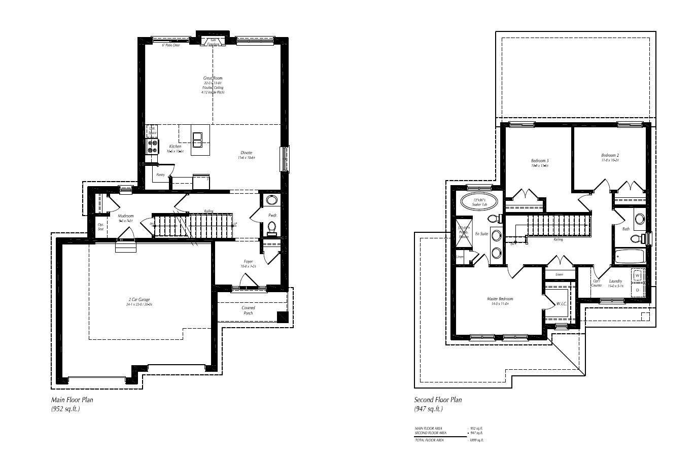
UNDER CONSTRUCTION - The "Matthew" from Tarion award-winning Parry Homes. This model features a stunning great room with vaulted ceiling, large custom kitchen with an island, and a corner pantry. Luxury vinyl plank flooring throughout the entire main floor. The second floor primary bedroom has a walk-in closet and an ensuite bathroom with 2 sinks, a tiled shower, and a soaker tub. Two nicely sized bedrooms, laundry room, and 4pc bathroom complete the space. Two-car attached garage with inside entry. Ideally located near the 402 & a short drive to Sarnia & Strathroy, enjoy peaceful suburban living with easy access to nearby conveniences. Price includes HST, Tarion Warranty, Property Survey, Concrete Driveway & Sod in yard. Taxes & Assessed Value to be determined. Please note that photos are for illustrations purposes only and are from a previously built similar model, and some upgrades/finishes may not be included.
Location
Province ON
County Lambton
Area Lambton
Rooms
Family Room Yes
Basement Full, Unfinished
Kitchen 1
Interior
Interior Features Auto Garage Door Remote, ERV/HRV, Sump Pump
Cooling Central Air
Fireplaces Type Natural Gas
Fireplace Yes
Heat Source Gas
Exterior
Exterior Feature Porch
Parking Features Private Double
Garage Spaces 2.0
Pool None
Roof Type Asphalt Shingle
Lot Frontage 51.65
Lot Depth 150.15
Total Parking Spaces 4
Building
Unit Features Park,School
Foundation Poured Concrete
Others
ParcelsYN No
Listed by CENTURY 21 FIRST CANADIAN CORP.

GET MORE INFORMATION
Quick Search
- Toronto, ON
- Banbury Don Mills Homes for sale
- Bridle Path Sunnybrook-York Mills Homes for sale in
- Casa Loma Homes for sale
- Davisville Village Properties for sale
- Forest Hill South Homes for sale
- High Park homes for sale
- Lawrence Park Homes for sale
- Leaside Homes for sale
- North Toronto Homes for sale
- Oakwood-Vaughan and Humewood-Cedarvale Homes for sale
- Rosedale Moore Park Homes for sale
- Waterfront C01 Condominiums for sale
- Waterfront C08 Condominiums for sale
- Wychwood Homes for sale
- Yonge Eglinton Homes for sale
- Yonge St Clair Homes for sale
- Junction Area
- 1 Bedroom condos downtown Toronto less than $600K





